Готовые дома

Современный дом 174 м² с большой террасой

О проекте

Дом расположен на крайнем участке с уникальной треугольной формой. Благодаря грамотно спроектированному плану на участке легко разместить баню, бассейн, зону барбекю.

В доме продумано абсолютно всё: от уникального фасада с вертикальной имитацией бруса, придающей дому современный и статусный вид, до просторной террасы из натуральной лиственницы с удобной зоной для отдыха и навесом.
  • Срок строительства: 8 месяцев
  • Комплектация: «Под ключ»
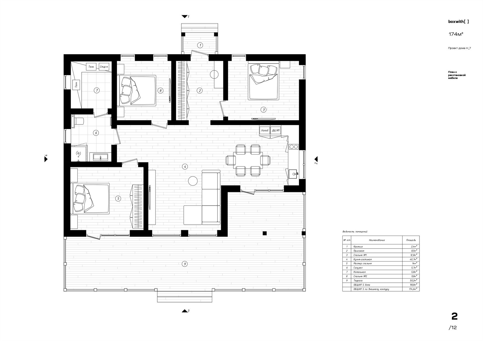
  • Общая площадь: – 174 м2 по внешнему контуру, жилая 92, м2
  • Количество комнат: 3 жилых комнаты
  • Фундамент: Ж/Б сваи 150х150
Технические детали проекта
Технические характеристики

Каркас и утепление:

  • Обработка нижних досок антисептиком;
  • Каркас — доска сухая строганная сосна (45х195);
  • Утеплитель — каменная вата Технониколь Роклайт Master (стены — 200мм, потолок — 250мм, м/к перегородки — 150мм);

Кровля и цоколь:

  • Крыша — металлочерепица (0,5), RAL 7024 матовая + все доборные элементы;
  • Цоколь зашит — профлист волна С8, матовый, RAL 7024;

Окна и отделка:

  • Окна — REHAU (5 камер, профиль 70мм), графит/графит;
  • Откосы снаружи — дерево с покраской в 2 слоя;
  • Отделка снаружи — имитация бруса 180мм Кедр с вертикальным расположением и нанесением декоративного лака в 2 слоя;
  • Входная дверь с терморазрывом (производитель — Новосибирск);
  • Черновой пол — полусухая стяжка;
  • Чистовой пол — ламинат 33 класс (выбран заказчиком);
  • Отделка санузлов «под ключ»;
  • Террасная доска — лиственница Вельвет с покрытием маслом в 2 слоя;
  • Рейки на террасе — окрашены в 2 слоя;

Отопление, сантехника, электрика:

  • Электрика — дифавтомат, кабель ВВГнг-LS в гофре, котельная и дом с полной разводкой «под ключ»;
  • Сантехника — скрытая разводка воды в стяжке;
  • Отопление — электрический котёл Зота, водяной тёплый пол Valtec, дополнительно заведен газовый котёл (сторонний подрядчик);
  • Бойлер косвенного нагрева 200л, радиаторы в гостиной;

Вентиляция:

  • Приточные клапаны в жилых помещениях;
  • Вентиляция в санузлах и котельной (под газ);

Технические моменты:

  • Вода — бурение скважины, подключение;
  • Септик — переливной, бетонные кольца плюс люк;
  • Подключение дома к электричеству под землёй;
  • Канализационные трубы утеплены, дополнительно проложен греющий кабель;

Дополнительные услуги:

  • Установка датчика от протечки воды;
  • Регулировка тёплых полов по контурам (каждая комната со своим термодатчиком);

Видео-обзор дома


Экстерьер

Слайдер
Фото 1 Фото 2 Фото 3 Фото 4 Фото 5 Фото 6

Интерьер

Слайдер
Фото 1 Фото 2 Фото 3 Фото 4 Фото 5 Фото 6 Фото 7 Фото 8 Фото 9 Фото 10

Планировка

Слайдер
Фото 1 Фото 2 Фото 6 Фото 7