Готовые дома

Каркасный дом 105 м² в стиле барнхаус

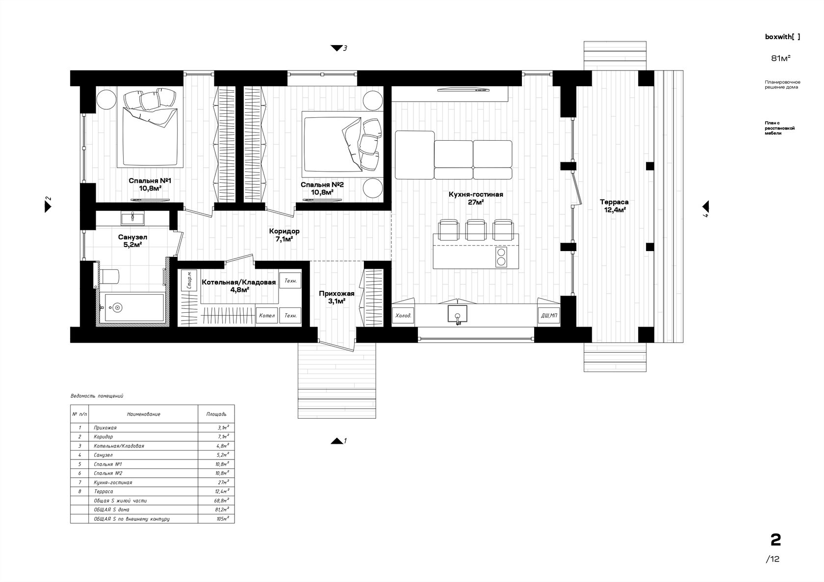
Этот барнхаус был разработан по индивидуальными предпочтениям наших заказчиков. Они сами выбирали стиль и цвета, а наша команда обеспечила качественные коммуникации, электричество, тёплые полы и вентиляцию. В доме использованы графитовые окна, деревянные балки, натуральная террасная доска и современные инженерные решения для комфорта и долговечности.

Краткая информация

  • Срок строительства: - 6 месяцев
  • Построили классный БАРН
  • Общая площадь: – 105 кв м

Подробнее о материалах, которые использовались в строительстве

  • Фундамент – ж/б сваи 150*150 4м
  • Отделка снаружи - имитация бруса кедр сорт АВ + Профлист матовый цвет графит (раз 7024)
  • Отделка внутри - вагонка штиль кедр АВ – вертикальная раскладка;
  • Цоколь - продолжение фасада.
  • Крыша - Профлист цвет графит (раз 7024), все доборные элементы цвет графит;
  • Террасная доска - лиственница, вельвет;
  • Утеплитель - каменная вата технониколь роклайт master;
  • Электрика - дифференциальный автоматический выключатель (дифавтомат), кабель ВВГнг-LS в гофре;
  • Отопление - электрический котёл ZOTA, водяной тёплый пол VALTEC, бойлер косвенного нагрева 150 литров.
  • Входная дверь с терморазрывом.
  • Черновой пол - полусухая стяжка;
  • Чистовой пол - ПВХ ламинат.
  • Потолок натяжной белый матовый;
  • Межкомнатные двери - мдф пленка;
  • Окна - Exprof, цвет графит/графит;
  • Покраска в 2 слоя снаружи (краска Тиккурила)
  • Покраска в 2 слоя внутри (краска Тиккурила)

Технические моменты

  • Септик - бетонные кольца плюс люк;
  • Скважина - бетонные кольца плюс люк;
  • Подключение дома к электричеству под землей;
  • Канализационные трубы утеплены и дополнительно проложили греющий кабель;

Планировка

Слайдер
Фото 1 Фото 5 Фото 6 Фото 6