Готовые дома

Современный загородный дом 134 м² для круглогодичного проживания

О проекте

Этот уютный дом идеально подходит для круглогодичного проживания и комфортной семейной жизни. Внешне он выглядит компактным и аккуратным, но стоит войти и вас удивит просторная, продуманная до мелочей планировка.

Дом построен с учётом всех инженерных тонкостей: умные выключатели, приточные клапаны, продуманная электрика, противопожарные системы.
  • Комплектация "под ключ"
  • Срок строительства - 8 месяцев
  • Построили каркасный дом в комплектации «Под ключ»
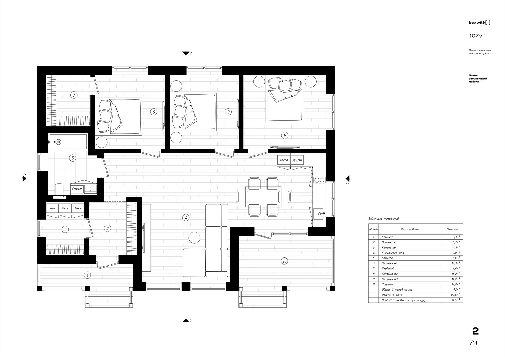
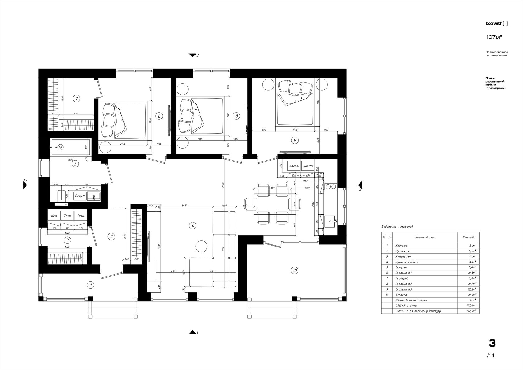
  • Общая площадь – 132 м2 по внешнему контуру, жилая 92, м2
  • 3 комнаты

Технические детали проекта
Технические характеристики

Фундамент:

  • Ж/Б сваи;

Каркас и утепление:

  • Обработка нижних досок антисептиком;
  • Каркас — доска сухая строганная сосна (45х145, 45х195);
  • Утеплитель — каменная вата Технониколь Роклайт Master (стены — 200мм, потолок — 250мм, м/к перегородки — 150мм);

Кровля и цоколь:

  • Крыша — металлочерепица (0,5), RAL 7024, все доборные элементы также RAL 7024;
  • Цоколь зашит — профлист, матовый, RAL 7024 (дополнительно утеплён);
  • Уголок 30х30, металлические отливы матовые, RAL 7024;

Окна и отделка:

  • Окна — REHAU (5 камер, профиль 70мм), белый/белый;
  • Откосы снаружи — дерево с покраской в 2 слоя;
  • Отделка снаружи — имитация бруса 180мм Кедр, антисептик Люксенс в 2 слоя;
  • Свесы и потолок на террасе — имитация бруса 180мм Кедр, антисептик Люксенс в 2 слоя;
  • Углы дома — имитация бруса 180мм Кедр, антисептик Люксенс в 2 слоя;
  • Входная дверь с терморазрывом;
  • Черновой пол — полусухая стяжка;
  • Чистовой пол — ПВХ плитка; в прихожей и котельной — плитка;
  • Террасная доска — лиственница Вельвет с покрытием маслом в 2 слоя;
  • Рейки на террасе — окрашены в 2 слоя;

Отопление, сантехника, электрика:

  • Электрика — дифавтомат, кабель ВВГнг-LS в гофре; котельная с полной разводкой «под ключ» (по дому разводка не осуществлялась);
  • Сантехника — скрытая разводка воды в стяжке;
  • Отопление — электрический котёл Зота, водяной тёплый пол Valtec; дополнительно заведен газовый котёл (сторонний подрядчик);
  • Бойлер косвенного нагрева 150л, радиаторы в гостиной;

Вентиляция:

  • Приточные клапаны в жилых помещениях;
  • Вентиляция в санузлах и котельной;

Технические моменты:

  • Вода — бурение скважины, подключение;
  • Септик — переливной, бетонные кольца плюс люк;
  • Подключение дома к электричеству под землёй;
  • Канализационные трубы утеплены, дополнительно проложен греющий кабель;

Видео-обзор дома


Экстерьер

Слайдер
Фото 1 Фото 2 Фото 3 Фото 4 Фото 5 Фото 6 Фото 7 Фото 8

Интерьер

Слайдер
Фото 1 Фото 2 Фото 3 Фото 4 Фото 5 Фото 6 Фото 7 Фото 8 Фото 9 Фото 10 Фото 11 Фото 12 Фото 13 Фото 14 Фото 15

Планировка

Слайдер
Фото 1 Фото 2 Фото 5 Фото 6