Готовые дома

Каркасный дом 118 м² с мансардой

О проекте

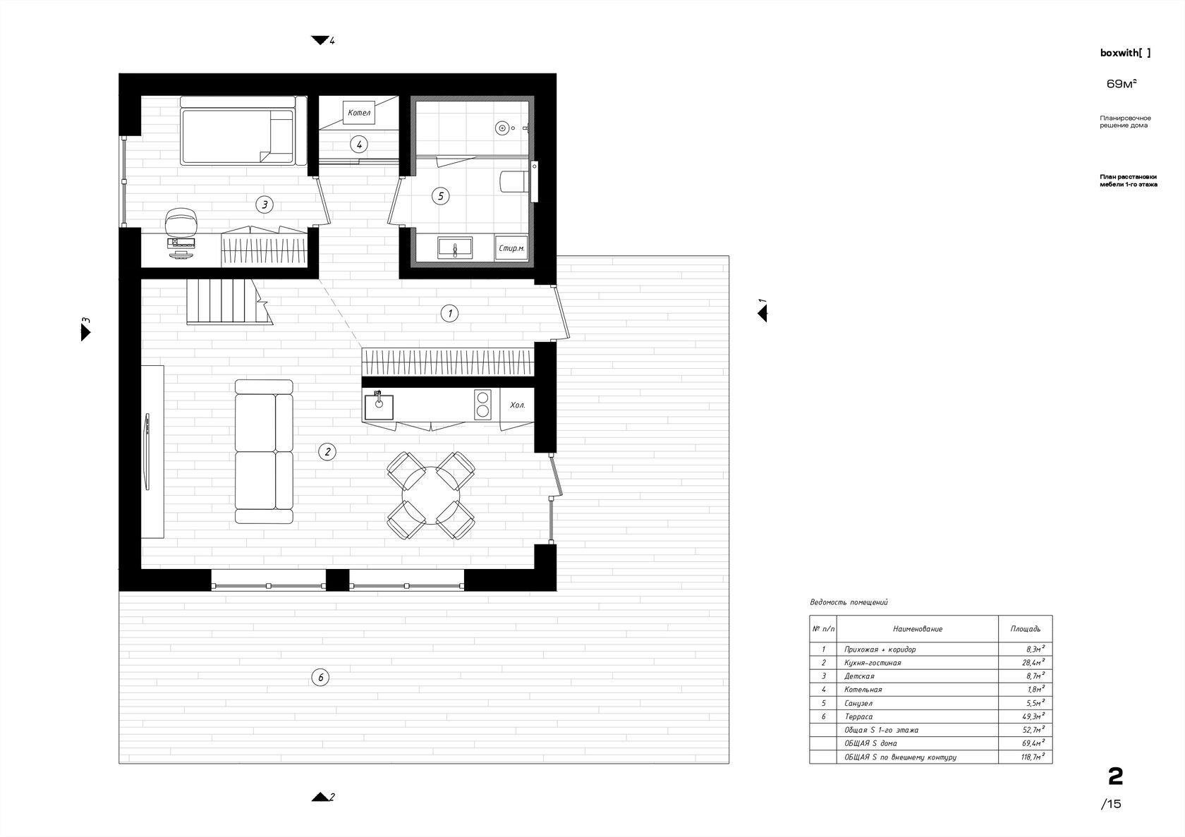
Идеальный дом для семьи из трёх человек: просторная кухня-гостиная с панорамными окнами с видом на сосны, современный дизайн с потолками выше 4,5 м и продуманная планировка с уютной мансардой для отдыха. Терраса выполнена из композитной доски, которая не требует ежегодного ухода, а интернет работает стабильно даже в лесу благодаря спутниковой системе и усилителям.

  • Срок строительства: 8 месяцев
  • Комплектация: «Под ключ»
  • Общая площадь: 118 м2 по внешнему контуру, общая 69 м2
  • Количество комнат: 1 жилая комната+мансардный этаж
  • Фундамент: –Ж/Б сваи 150х150
Технические детали проекта
Технические характеристики

Каркас и утепление:

  • Обработка нижних досок антисептиком;
  • Каркас — доска сухая строганная сосна (45х195);
  • Утеплитель — каменная вата Технониколь Роклайт Master (стены — 200мм, потолок — 250мм, м/к перегородки — 150мм);

Кровля и цоколь:

  • Крыша — металлочерепица (0,5), RAL 7024 матовая + все доборные элементы;
  • Цоколь зашит — профлист волна С8, матовый, RAL 7024;

Окна и отделка:

  • Окна — REHAU (5 камер, профиль 70мм), белый/белый;
  • Откосы снаружи — дерево с покраской в 2 слоя;
  • Отделка снаружи — имитация бруса 180мм Кедр с горизонтальным расположением и покраской в 2 слоя;
  • Входная дверь с терморазрывом (производитель — Новосибирск);
  • Черновой пол — полусухая стяжка;
  • Террасная доска — ДПК + уголок из ДПК;
  • Рейки на террасе — окрашены в 2 слоя;

Внутренняя отделка:

  • Имитация бруса 140мм Кедр с вертикальным расположением и покраской в 2 слоя;
  • Монтаж натяжного потолка;
  • Монтаж напольного покрытия (ламинат);
  • Монтаж межкомнатных дверей;
  • Монтаж напольного плинтуса;
  • Монтаж светильников, розеток и выключателей;

Отопление, сантехника, электрика:

  • Электрика — дифавтомат, кабель ВВГнг-LS в гофре, полная разводка «под ключ» по всему дому;
  • Сантехника — скрытая разводка воды в стяжке;
  • Монтаж душевого ограждения, смесителя душа, унитаза, батарей (2 этаж);
  • Отопление — электрический котёл Зота, водяной тёплый пол Valtec;
  • Бойлер косвенного нагрева 150л, радиаторы на 2 этаже;

Технические моменты:

  • Вода — бурение скважины, подключение;
  • Септик — переливной, бетонные кольца плюс люк;
  • Подключение дома к электричеству под землёй;
  • Канализационные трубы утеплены, дополнительно проложен греющий кабель;

Дополнительные услуги:

  • Установка датчика от протечки воды;
  • Монтаж выводов под батареи под окнами (для отсечки холода и предотвращения конденсата);

Видео-обзор дома


Экстерьер

Слайдер
Фото 1 Фото 2 Фото 3 Фото 4

Интерьер

Слайдер
Фото 1 Фото 2 Фото 3 Фото 4 Фото 5 Фото 6 Фото 7 Фото 8 Фото 9 Фото 10 Фото 11

Планировка

Слайдер
Фото 1 Фото 2 Фото 3 Фото 4