Готовые дома

Дом мечты 115 м² в комплектации «Под ключ»

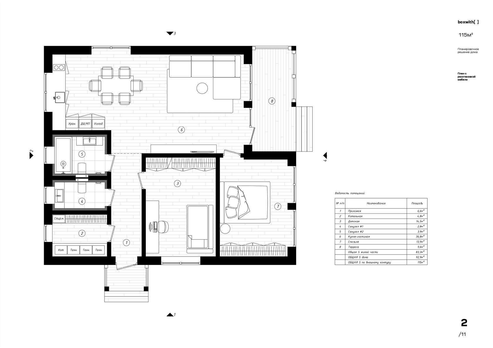
В этом доме каждый штрих продуман ещё на этапе проекта: от выбора оттенков фасада до расположения розеток под новогоднюю ёлку. Мы вместе с заказчиком работали над каждой деталью, чтобы результат был не просто домом, а настоящим отражением его мечты. Просторная гостиная со вторым светом, уютные спальни, современная кухня и внимание к каждой мелочи создают комфорт и атмосферу.

Дом полностью готов к жизни: проведены все коммуникации, продумана вентиляция, установлены тёплые полы, котельная с современным оборудованием и даже кухня с каменной столешницей. Всё сделано так, чтобы новые хозяева могли заехать и сразу наслаждаться своим домом, наполненным светом, воздухом и уютом.
Краткая информация:

  • Срок строительства: 8 месяцев
  • Комплектация: «Под ключ»
  • Общая площадь: 115 м2 по внешнему контуру, жилая 83,3 м2
Технические характеристики
Технические характеристики

Фундамент:

  • Забивные железобетонные сваи 150×150, длина 4м;

Каркас и утепление:

  • Каркас — доска сухая строганная сосна (45×145, 45×195);
  • Обработка нижних лаг антисептиком;
  • Утеплитель — каменная вата Технониколь Роклайт Master (стены — 200мм, пол/потолок — 250мм, межкомнатные перегородки — 150мм);

Кровля и цоколь:

  • Крыша — металлочерепица 0,5мм, RAL 7024 (графит), все доборные элементы в цвет;
  • Цоколь зашит — профлист, матовый, RAL 7024;

Окна и отделка:

  • Окна — GEALAN (5 камер, профиль 70мм), ламинация графит с внешней стороны;
  • Откосы: внутри — белый пластик, снаружи — дерево с покраской в RAL 7024;
  • Металлические отливы — RAL 7024;
  • Отделка снаружи — имитация бруса 180мм Кедр, покраска в 2 слоя пропиткой PINOTEX (цвет «Тиковое дерево»);
  • Отделка внутри — вагонка «Штиль» Кедр 140мм, вертикальная раскладка;
  • Входная дверь с терморазрывом и греющим кабелем;
  • Черновой пол — полусухая стяжка;
  • Чистовой пол — ламинат 33 класса и плитка;
  • Потолок — натяжной, белый матовый, трековые светильники и световые линии;
  • Межкомнатные двери — МДФ в плёнке;

Терраса:

  • Террасная доска — лиственница «Вельвет», покрытие террасным маслом NEOMID (цвет «Палисандр»);
  • Рейки на террасе — лиственница сухая строганная;

Отопление, сантехника, электрика:

  • Электрика — дифавтомат, кабель ВВГнг-LS в гофре;
  • Отопление — электрический котёл ZOTA, водяной тёплый пол Valtec, газовый котёл Copa (установка подрядной организацией);
  • Бойлер косвенного нагрева 200л, два водяных радиатора;
  • Система водоочистки — Waterboss;

Вентиляция:

  • Приточные клапаны в жилых помещениях;
  • Принудительная вентиляция на кухне и в санузле;
  • Котельная — естественная вентиляция;

Технические моменты:

  • Скважина — бетонные кольца с люком;
  • Септик — бетонные кольца с люком;
  • Подключение дома к электричеству под землёй;
  • Канализационные трубы утеплены, дополнительно проложен греющий кабель;

Планировка

Слайдер
Фото 1 Фото 5 Фото 6 Фото 6