Этот дом — настоящее воплощение мечты о комфортной и уютной жизни вдали от городской суеты. Дом проектировался с учётом всех пожеланий заказчиков: от видеонаблюдения и интернета до закладных под телевизоры и кухню, чтобы каждый уголок был функциональным и удобным.
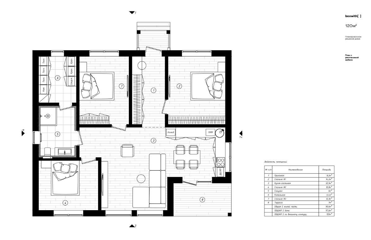
Во время строительства были учтены все нюансы: вентиляция чердака, террасная доска, греющие кабели на скважину и канализацию, индивидуальная мебель, согласованная с дизайном интерьера. Здесь две спальни, ванная, прихожая, большая гостиная и терраса, где можно устраивать уютные вечера. Каждая деталь продумана так, чтобы жизнь была комфортной и безопасной, а дом становился настоящим семейным гнёздышком.
Во время строительства были учтены все нюансы: вентиляция чердака, террасная доска, греющие кабели на скважину и канализацию, индивидуальная мебель, согласованная с дизайном интерьера. Здесь две спальни, ванная, прихожая, большая гостиная и терраса, где можно устраивать уютные вечера. Каждая деталь продумана так, чтобы жизнь была комфортной и безопасной, а дом становился настоящим семейным гнёздышком.
Дом готов! Наступил тот момент, когда мы готовы рассказать подробнее о материалах, сроках, площади и стоимости дома
Краткая информация:
Подробнее о материалах, которые использовались в строительстве👇🏼
Краткая информация:
- Срок строительства: - 6 месяцев
- Комплектация: «Под ключ»
- Площадь - 120 кв м
- Срок строительства: - Май 2022 - Ноябрь 2022
Подробнее о материалах, которые использовались в строительстве👇🏼
- Фундамент - железобетонные сваи;
- Отделка снаружи - имитация бруса кедр сорт АВ;
- Отделка внутри - вагонка штиль кедр АВ;
- Цоколь зашит - профлист, цвет графит;
- Крыша - металлочерепица 0,5, цвет графит, все доборные элементы тоже цвет графит;
- Террасная доска - лиственница вельвет;
- Утеплитель - каменная вата технониколь роклайт master;
- Электрика - дифференциальный автоматический выключатель (дифавтомат), кабель ВВГнг-LS в гофре;
- Отопление - электрический котёл зота, водяной тёплый пол valtec, бойлер косвенного нагрева, два водяных радиатора;
- Система водоочистки;
- Входная дверь с терморазрывом "Центурион";
- Черновой пол - полусухая стяжка;
- Чистовой пол - ламинат, плитка;
- Потолок натяжной белый матовый;
- Межкомнатные двери - мдф пленка;
- Окна - REHAU;
- Рейки на террасе - лиственница сухая строганная;
- Обработка всего каркаса антисептиков 3в1 neomid;
- Покраска в 2 слоя снаружи - антисептик luxens;
- Покраска в 2 слоя внутри - антисептик pinotex.
- Септик переливной - бетонные кольца плюс люк;
- Подключение дома к электричеству под землей;
- Видеонаблюдение 4 камеры;
- Завели в дом интернет;
- Канализационные трубы утеплены и дополнительно проложили греющий кабель;
- Отмостка.