Готовые дома

Яркий каркасный дом 125 м²

О проекте

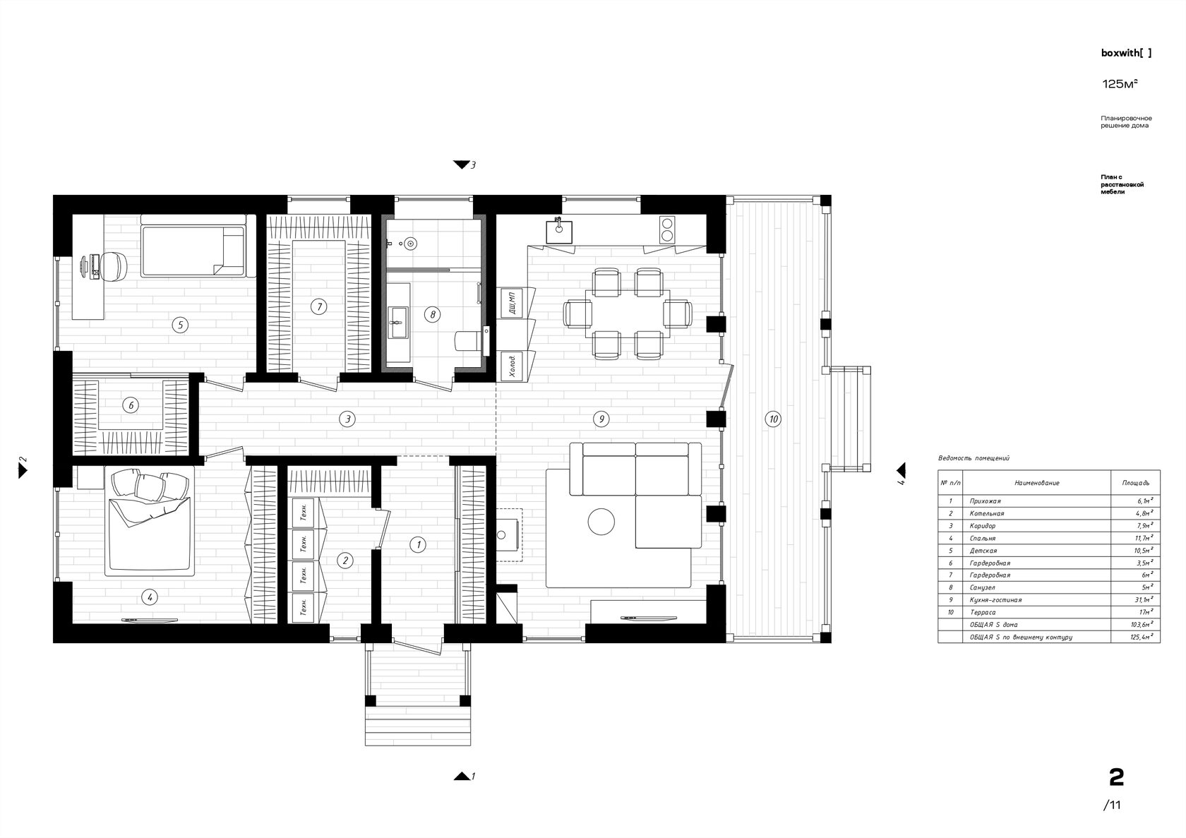
Этот дом построен по индивидуальному проекту для девушки-блогера с учетом всех пожеланий: много солнечного света, панорамные окна, высокие потолки, просторные комнаты, выход на большую террасу и команта для любимого енота.
  • Срок строительства: 6 месяцев
  • Построили каркасный дом в комплектации «Теплый контур»
  • Общая площадь: 125 м2 по внешнему контуру, жилая 86, м2
  • 2 жилых комнаты+гаредероб

Технические детали проекта
Технические характеристики

Фундамент и каркас:

  • Фундамент — Ж/Б сваи 150х150;
  • Обработка нижних досок антисептиком;
  • Каркас — доска сухая строганная сосна (45х195);
  • Утеплитель — каменная вата Технониколь Роклайт Master (стены — 200мм, потолок — 250мм, м/к перегородки — 150мм);

Кровля и цоколь:

  • Крыша — металлочерепица (0,5), RAL 7024 матовая + все доборные элементы;
  • Цоколь зашит — профлист волна С8, матовый, RAL 7024;

Окна и отделка:

  • Окна — REHAU (5 камер, профиль 70мм), белый/белый со шпросами;
  • Откосы снаружи — дерево с покраской в 2 слоя;
  • Отделка снаружи — имитация бруса 180мм Кедр с горизонтальным расположением и покраской в 2 слоя;
  • Входная дверь с терморазрывом (производитель — Новосибирск);
  • Черновой пол — полусухая стяжка;
  • Террасная доска — лиственница Вельвет с покрытием маслом в 2 слоя;
  • Рейки на террасе — окрашены в 2 слоя;

Отопление, сантехника, электрика:

  • Электрика — дифавтомат, кабель ВВГнг-LS в гофре; котельная с полной разводкой «под ключ» (по дому разводка не осуществлялась);
  • Сантехника — скрытая разводка воды в стяжке;
  • Отопление — электрический котёл Зота, водяной тёплый пол Valtec; дополнительно заведён газовый котёл (сторонний подрядчик);
  • Бойлер косвенного нагрева 200л, радиаторы в гостиной;

Технические моменты:

  • Вода — бурение скважины, подключение к скважине;
  • Септик — переливной, бетонные кольца плюс люк;
  • Подключение дома к электричеству под землёй;
  • Канализационные трубы утеплены, дополнительно проложен греющий кабель;

Дополнительные услуги:

  • Установка датчика от протечки воды;
  • Монтаж выводов под батареи под окнами (для отсечки холода и предотвращения конденсата);

Видео-обзор дома


Экстерьер

Слайдер
Фото 1 Фото 2 Фото 3 Фото 4 Фото 5 Фото 6 Фото 7 Фото 8

Планировка

Слайдер
Фото 1 Фото 2 Фото 5 Фото 6