Готовые дома

Каркасный дом 125 м² для молодой семьи

О проекте

Дом в комплектации «Под ключ» — это готовое решение для семьи. Высокие потолки, большие окна и тёплые светлые оттенки отделки делают дом визуально ещё больше и светлее.

Уже выполнены все инженерные системы: отопление, электрика, водоснабжение и канализация. Установлены тёплые полы, система защиты от протечек и выводы под кондиционеры. Дом полностью готов к проживанию, остаётся только завезти мебель и создать в нём свой уют.
  • Срок строительства: 7 месяцев
  • Комплектация: «Под ключ»
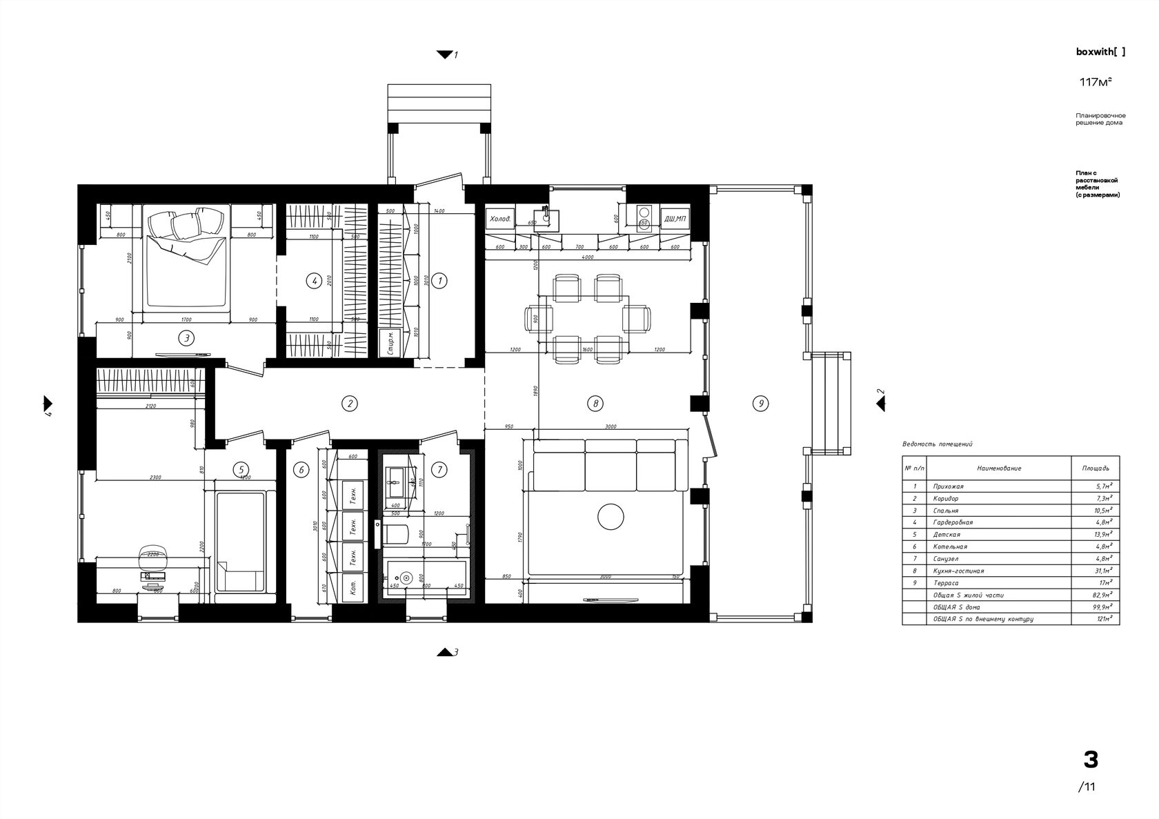
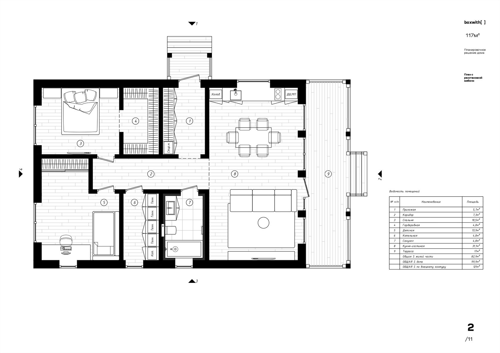
  • Общая площадь: 125 м2 по внешнему контуру, жилая 86,6 м2

Технические детали проекта
Технические характеристики

Фундамент:

  • Забивные железобетонные сваи 150х150, длина 4 м;

Каркас и утепление:

  • Каркас — доска сухая строганная сосна (45х145, 45х195);
  • Утеплитель — каменная вата Технониколь Роклайт Master (стены — 200мм, пол/потолок — 250мм, м/к перегородки — 150мм);
  • Обработка нижних лаг антисептиком;

Кровля и цоколь:

  • Крыша — металлочерепица 0,5, RAL 7024 (графит), все доборные элементы в том же цвете;
  • Цоколь зашит — профлист, матовый, RAL 7024;

Окна и двери:

  • Окна — GEALAN (5 камер, профиль 70мм), ламинация графит снаружи; внутри — откосы белый пластик, снаружи дерево, окраска RAL 7024;
  • Металлические отливы — RAL 7024;
  • Входная дверь с терморазрывом;
  • Межкомнатные двери — МДФ плёнка;

Отделка снаружи:

  • Имитация бруса 180мм Кедр, окраска Tikkurila Valti Ultra в 2 слоя;
  • Рейки на террасе;
  • Террасная доска — ДПК, цвет Grigio;

Отделка внутри:

  • Имитация бруса 180мм Кедр, горизонтальная раскладка;
  • Черновой пол — полусухая стяжка;
  • Чистовой пол — кварцевый ламинат, плитка;
  • Потолок — натяжной белый матовый; гостиная — имитация бруса, трековые и точечные светильники;

Отопление, сантехника, электрика:

  • Электрика — дифавтомат, кабель ВВГнг-LS в гофре;
  • Отопление — электрический котёл Зота, водяной тёплый пол Valtec; газовый котёл Copa (установка сторонней организацией);
  • Бойлер косвенного нагрева 200л, два водяных радиатора;
  • Система водоочистки (доп. услуга);

Вентиляция:

  • Приточные клапаны в жилых помещениях;
  • Принудительная вентиляция на кухне и в санузлах;
  • Котельная — естественная вентиляция;
  • Дверца в чердаке для дополнительной вентиляции чердачного помещения;

Технические моменты:

  • Скважина — прокол (КП Артёмкино);
  • Септик — бетонные кольца плюс люк;
  • Подключение дома к электричеству под землёй;
  • Канализационные трубы утеплены, дополнительно проложен греющий кабель;

Видео-обзор дома


Экстерьер

Слайдер
Фото 1 Фото 2 Фото 3 Фото 4 Фото 5 Фото 6 Фото 7 Фото 8 Фото 9 Фото 10 Фото 11 Фото 12

Интерьер

Слайдер
Фото 1 Фото 2 Фото 3 Фото 4 Фото 5 Фото 6 Фото 7 Фото 8 Фото 9 Фото 10 Фото 11 Фото 12 Фото 13 Фото 14 Фото 15 Фото 16 Фото 17 Фото 18 Фото 19 Фото 20 Фото 21 Фото 22

Планировка

Слайдер
Фото 1 Фото 2 Фото 5 Фото 6