Готовые дома

Дом A-FRAME с сауной 125 м² для круглогодичного проживания

О проекте

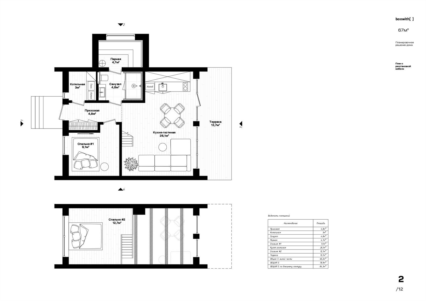
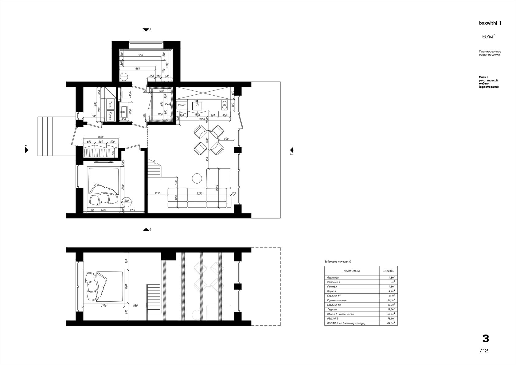
Такой дом подойдет и для жизни и для сдачи в аренду. Просторная терраса со ступенями во всю ширину сразу задаёт атмосферу загородного уюта: здесь можно расположиться с друзьями, провести вечер у мангала или просто наслаждаться тишиной. Дом выполнен в комплектации «Под ключ» с надёжным фундаментом, системой отопления и продуманными инженерными решениями.

В доме есть собственная сауна с большим окном: сидя в парной, вы не только отдыхаете, но и любуетесь видами участка. Современный и комфортный дом для круглогодичного проживания.
  • Срок строительства: 7 месяцев
  • Комплектация: «Под ключ»
  • Общая площадь: 125 м2 по внешнему контуру, жилая 82, м2

Технические детали проекта
Технические характеристики

Фундамент:

  • Забивные железобетонные сваи 150х150;

Каркас:

  • Доска сухая строганная сосна (45х145, 45х195);

Крыша:

  • Профлист 0,5, RAL 7024 (графит), все доборные элементы также RAL 7024;

Утепление:

  • Каменная вата Технониколь Роклайт Master;
  • Стены — 200мм, пол/потолок — 250мм, м/к перегородки — 150мм;

Отделка снаружи:

  • Имитация бруса 180мм Кедр, покраска в 2 слоя (цвет Палисандр);
  • Цоколь — профлист С8, толщина 0,5, матовый, RAL 7024;
  • Окна — REHAU (5 камер, профиль 70мм), окрашены в графит снаружи;
  • Откосы: внутри — белый пластик, снаружи — дерево, покраска RAL 7024;
  • Металлические отливы — RAL 7024;

Электрика:

  • Дифференциальный автоматический выключатель (дифавтомат);
  • Кабель ВВГнг-LS в гофре;

Отопление и вода:

  • Разводка воды скрытая в стяжке;
  • Электрический котёл Зота;
  • Водяной тёплый пол Valtec;
  • Бойлер косвенного нагрева 150л;
  • Вывод летней воды;

Внутренняя отделка:

  • Стены — вагонка 140мм Кедр, покраска в 2 слоя Tikkurila, интерьерный лак;
  • Котельная — вагонка 140мм Кедр, покраска в 2 слоя Tikkurila, интерьерный лак;
  • Сауна — вагонка Экстра Кедр, полки из Липы;
  • Чистовой пол — кварцевый ламинат, плитка;

Двери:

  • Входная дверь с терморазрывом;
  • Межкомнатные двери — МДФ плёнка;

Терраса:

  • Террасная доска — лиственница Вельвет, покрыта маслом в 2 слоя;
  • Обработка нижних лаг антисептиком;

Вентиляция:

  • Приточные клапаны в жилых помещениях;
  • Принудительная вентиляция на кухне, в санузлах и котельной;

Технические моменты:

  • Скважина — бетонные кольца + люк;
  • Септик — переливной, бетонные кольца плюс люк;
  • Подключение дома к электричеству под землёй;
  • Канализационные трубы утеплены, дополнительно проложен греющий кабель;

Видео-обзор дома


Экстерьер

Слайдер
Фото 1 Фото 2 Фото 3 Фото 4 Фото 5 Фото 6 Фото 7 Фото 8 Фото 9 Фото 10

Интерьер

Слайдер
Фото 1 Фото 2 Фото 3 Фото 4 Фото 5 Фото 6 Фото 7 Фото 8 Фото 9 Фото 10 Фото 11 Фото 12 Фото 13 Фото 14 Фото 15 Фото 16 Фото 17

Планировка

Слайдер
Фото 1 Фото 2 Фото 5 Фото 6 Фото 7