Этот дом на горе в Шерегеше стал настоящим вызовом: участок представлял собой лес с болотистой местностью и отсутствием подъезда. Чтобы создать безопасное и комфортное жильё, пришлось полностью обустроить территорию: вырубить деревья, отсыпать щебнем, организовать дренаж для отвода грунтовых вод, а также пробурить скважину и установить септик. Особое внимание уделялось фундаменту: на скалистой почве применяли винтовые сваи — надёжное и практичное решение, которое позволило быстро и качественно закрепить дом.
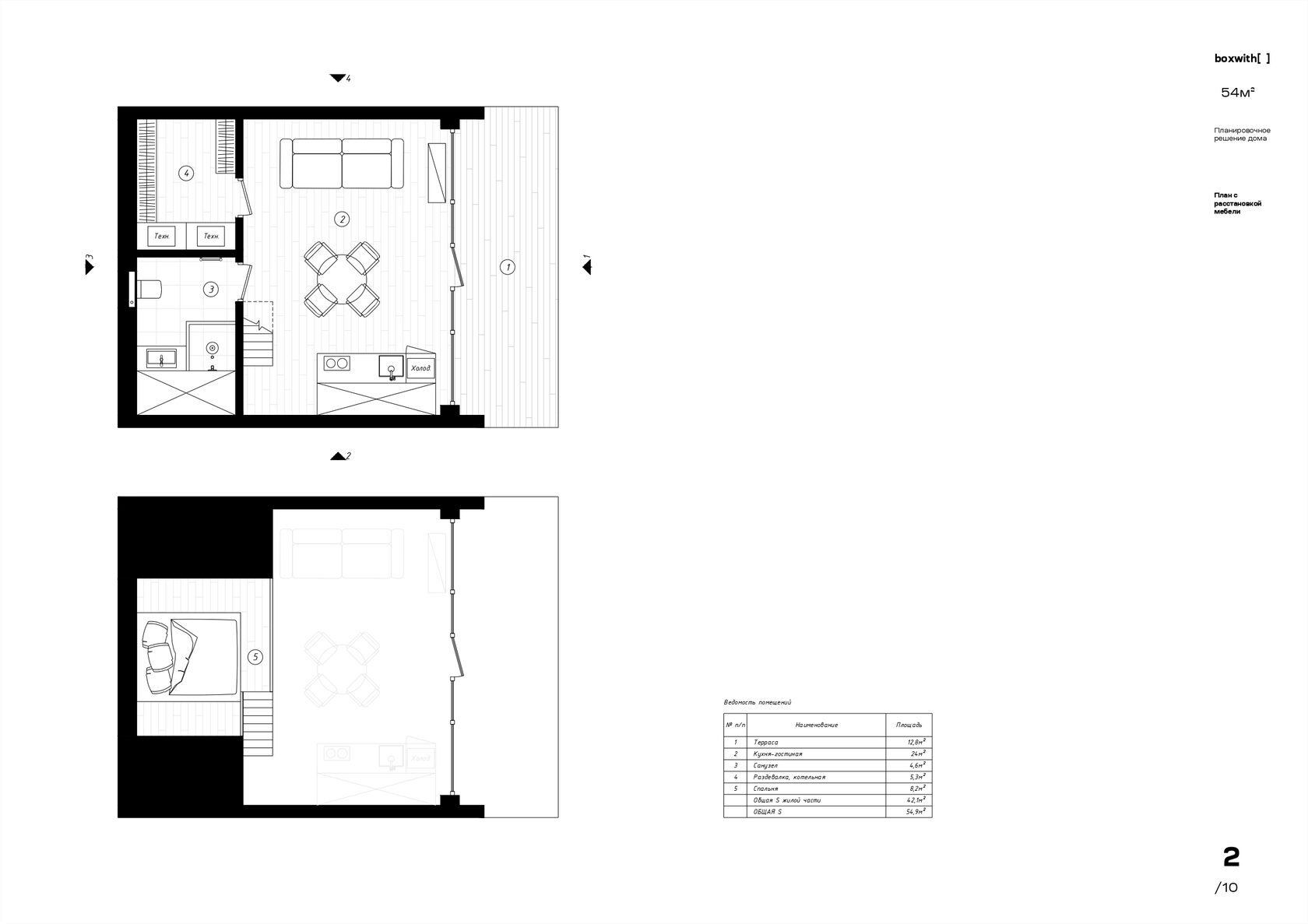
Дом двухэтажный с мансардой. Мебель здесь делалась частично на заказ, частично была установлена заказчиками. Этот проект служит ярким примером того, как грамотное планирование и индивидуальный подход превращают непростую задачу в уютный и функциональный дом.
Дом двухэтажный с мансардой. Мебель здесь делалась частично на заказ, частично была установлена заказчиками. Этот проект служит ярким примером того, как грамотное планирование и индивидуальный подход превращают непростую задачу в уютный и функциональный дом.
Краткая информация
Подробнее о материалах, которые использовались в строительстве
Технические моменты
- Срок строительства: 5 месяцев
- Комплектация: «Под ключ»
- Общая площадь: 54,9 кв м
Подробнее о материалах, которые использовались в строительстве
- Фундамент – винтовые сваи (89е);
- Отделка снаружи - имитация бруса кедр сорт АВ, краска TIKKURILA Valtti Plus ралл 5052;
- Отделка внутри - вагонка штиль кедр АВ – горизонтальная раскладка;
- Цоколь зашит - профлист, цвет графит;
- Крыша - металлочерепица 0,5, цвет графит, все доборные элементы тоже цвет графит;
- Террасная доска - лиственница вельвет, краска TIKKURILA TERRACE OIL ралл 505;
- Утеплитель - каменная вата Технониколь роклайт master;
- Электрика - кабель ВВГнг-LS в гофре;
- Отопление - электрический котёл ZOTA, водяной тёплый пол VALTEC, бойлер косвенного нагрева;
- Черновой пол - полусухая стяжка;
- Чистовой пол - плитка;
- Окна - REHAU, цвет графит;
- Лестница Каркас сухая доска строганная + Террасная доска - лиственница вельвет, краска TIKKURILA TERRACE OIL ралл 505;
- Покраска в 2 слоя внутри - пропитка PINOTEX, цвет береза;
Технические моменты
- Скважина - бетонные кольца + люк
- Септик - переливной, бетонные кольца + люк;
- Подключение дома к электричеству под землей;
- Канализационные трубы утеплены и дополнительно проложили греющий кабель;