Готовые дома

Современный дом 134 м² с гаражом и террасой с видом на лес

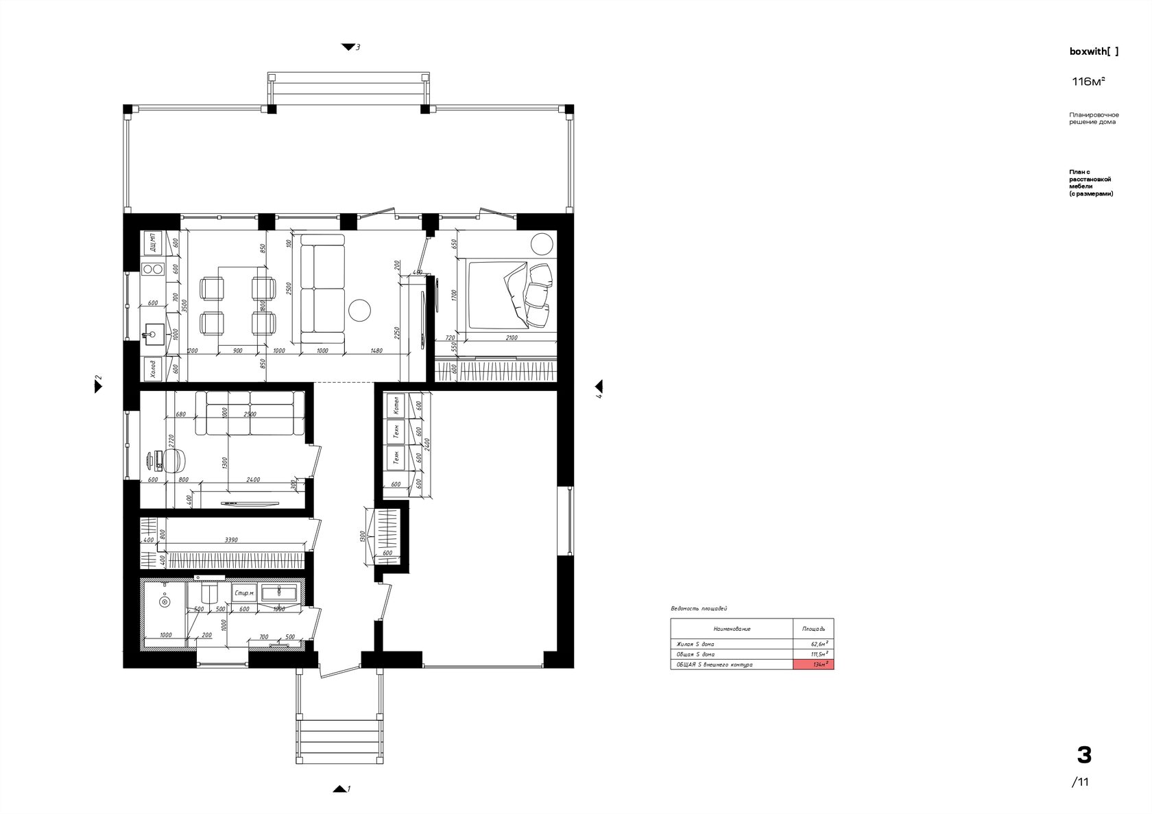
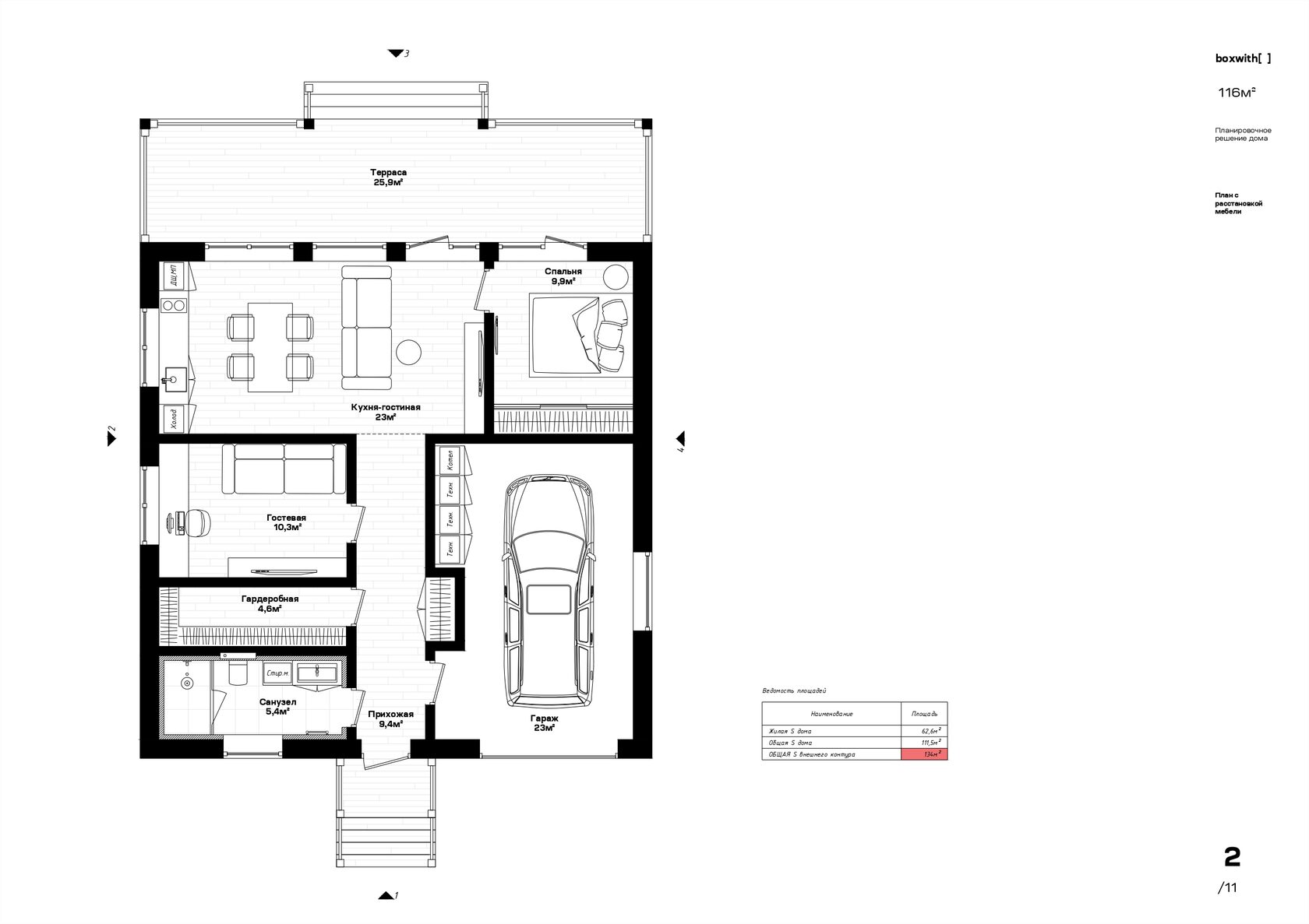
Этот дом построен на плите, а не на сваях, с учётом перепада рельефа, что потребовало дополнительных инженерных решений. Строительство включало адаптацию фундамента и корректировку планировки, чтобы создать комфортное пространство с двух спальнями, гостевой комнатой, кухней, гардеробом и террасой с видом на лес. Гостиная с выходом на террасу и большие окна создают ощущение простора, а внутренние материалы, включая кедровую вагонку и натяжные потолки с треками, придают дому современный и тёплый вид. Каждое окно, каждая деталь интерьера — результат совместной работы нашей команды и заказчиков, что делает этот дом по-настоящему индивидуальным.
Краткая информация

  • Срок строительства: 6 месяцев
  • Построили современный каркасный дом с гаражом
  • Общая площадь: по внешнему контуру – 134 кв м
  • Жилая площадь: 64,2
Технические характеристики
Технические характеристики

Фундамент:

  • Фундаментная монолитная плита;

Каркас и утепление:

  • Утеплитель — каменная вата Технониколь Роклайт Master;

Кровля и цоколь:

  • Крыша — металлочерепица 0,5мм, цвет графит, все доборные элементы в цвет;
  • Цоколь зашит — профлист, цвет графит;

Окна и отделка:

  • Окна — GEALAN, цвет белый/белый;
  • Отделка снаружи — имитация бруса, кедр, сорт АВ;
  • Покраска снаружи — Акватекс, 2 слоя;
  • Отделка внутри — вагонка «Штиль», кедр, сорт АВ, горизонтальная раскладка;
  • Покраска внутри — Акватекс, 2 слоя;
  • Входная дверь — с терморазрывом, Центурион;
  • Черновой пол — полусухая стяжка;
  • Чистовой пол — кварцевый ламинат;
  • Потолок — натяжной, белый матовый;
  • Межкомнатные двери — МДФ в плёнке;

Терраса:

  • Террасная доска — ДПК;
  • Рейки на террасе — лиственница сухая строганная;

Отопление и электрика:

  • Электрика — дифавтомат, кабель ВВГнг-LS в гофре;
  • Отопление — электрический котёл ZOTA;
  • Водяной тёплый пол — VALTEC;
  • Бойлер косвенного нагрева — 100 литров;

Технические моменты:

  • Септик — бетонные кольца с люком;
  • Подключение дома к электричеству под землёй;
  • Канализационные трубы утеплены, дополнительно проложен греющий кабель;

Планировка

Слайдер
Фото 1 Фото 5 Фото 6 Фото 6