Готовые дома

Дом 139 м² с идеальной планировкой

О проекте

Этот дом мы построили для профессионального дизайнера, и он действительно выделяется. Необычная форма в виде креста, индивидуальная планировка, яркий фасад, продуманные детали и внимание к каждому элементу — здесь всё продиктовано вкусом и функциональностью.

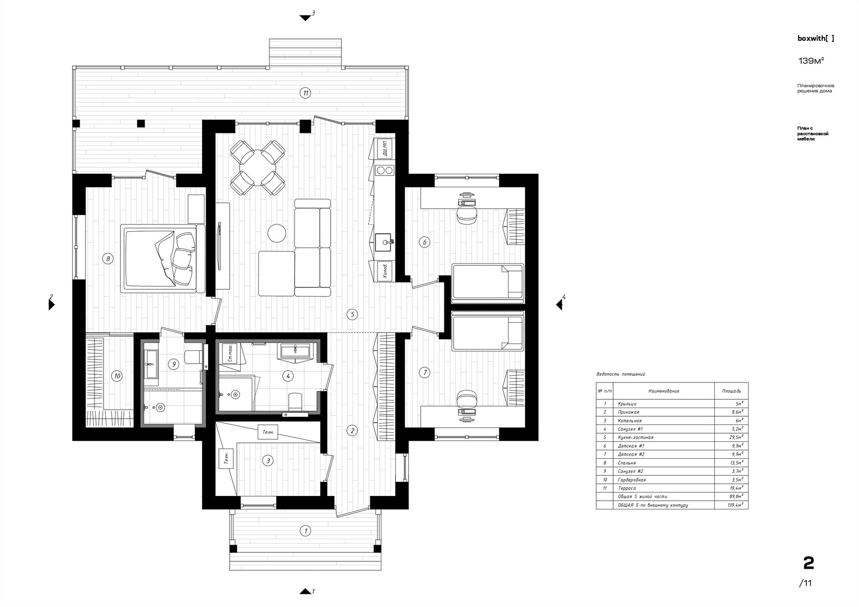
В доме есть все для комфортной жизни: отдельные зоны для детей и взрослых, два санузла, большая прихожая, гардеробная, панорамные окна, широкое крыльцо и даже учтен будущий газ.
  • Срок строительства: 10 месяцев
  • Комплектация: «Теплый контур»
  • Общая площадь: 139 м2 по внешнему контуру, жилая 89,9 м2
Технические детали проекта
Технические характеристики

Фундамент:

  • Ж/Б сваи;

Каркас и утепление:

  • Обработка нижних досок антисептиком;
  • Каркас — доска сухая строганная сосна (45х145, 45х195);
  • Утеплитель — каменная вата Технониколь Роклайт Master (стены — 200мм, потолок — 250мм, м/к перегородки — 150мм);

Кровля и цоколь:

  • Крыша — металлочерепица (0,5), RAL 7024, все доборные элементы также RAL 7024;
  • Цоколь зашит — профлист, матовый, RAL 7024 (дополнительно утеплён);
  • Уголок 30х30, металлические отливы матовые, RAL 7024;

Окна и отделка:

  • Окна — REHAU (5 камер, профиль 70мм), белый/белый;
  • Откосы снаружи — дерево, окрашено в 2 слоя;
  • Отделка снаружи — имитация бруса 180мм Кедр, декоративный антисептик Люксенс (2 слоя);
  • Свесы и потолок на террасе — имитация бруса 180мм Кедр, окраска в 2 слоя Люксенс;
  • Углы дома — имитация бруса 180мм Кедр, окраска в 2 слоя Люксенс;
  • Входная дверь с терморазрывом;
  • Черновой пол — полусухая стяжка;
  • Чистовой пол — ПВХ плитка, в прихожей и котельной — плитка;
  • Террасная доска — лиственница Вельвет с покрытием маслом в 2 слоя;
  • Рейки на террасе — окрашены в 2 слоя;

Отопление, сантехника, электрика:

  • Электрика — дифавтомат, кабель ВВГнг-LS в гофре, разводка в котельной «под ключ» (по дому разводка не осуществлялась);
  • Сантехника — скрытая разводка воды в стяжке;
  • Отопление — электрический котёл Зота, тёплый пол Valtec, подведён газовый котёл (сторонний подрядчик);
  • Бойлер косвенного нагрева 150л, радиаторы в гостиной;

Вентиляция:

  • Приточные клапаны в жилых помещениях;
  • Вентиляция в санузлах и котельной;

Технические моменты:

  • Вода — бурение скважины, подключение;
  • Септик — переливной, бетонные кольца плюс люк;
  • Подключение дома к электричеству под землёй;
  • Канализационные трубы утеплены, дополнительно проложен греющий кабель;

Видео-обзор дома


Экстерьер

Слайдер
Фото 1 Фото 2 Фото 3

Планировка

Слайдер
Фото 1 Фото 5 Фото 6