Готовые дома

Каркасный дом 150 м² в теплом контуре

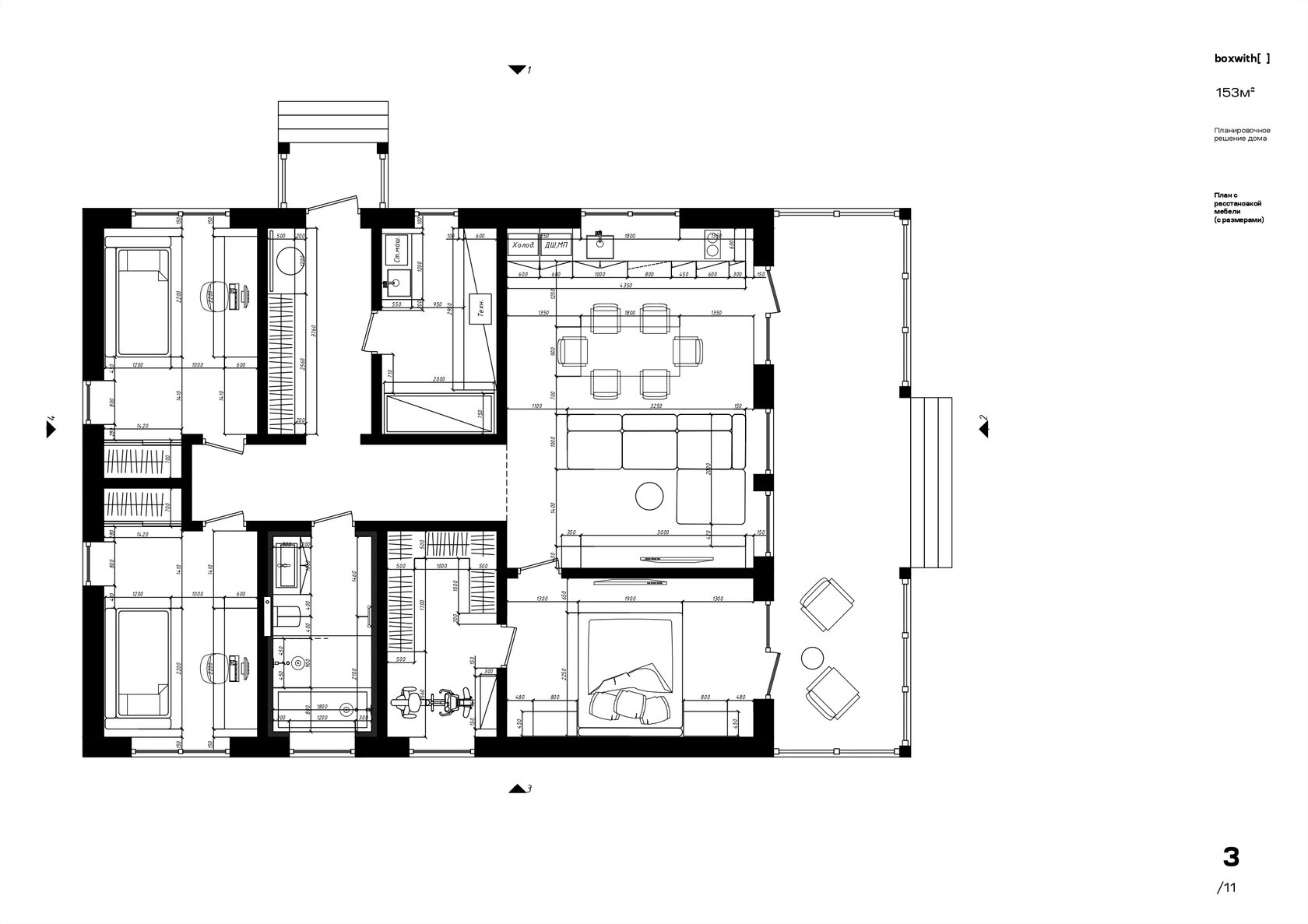
О проекте

Этот современный дом выполнен в комплектации «Тёплый контур», что означает полностью готовые коммуникации и качественную внешнюю отделку, но без внутренней чистовой отделки — идеальный вариант для тех, кто хочет сделать интерьер по своему вкусу.

Внутри дом с просторной гостиной с потолками высотой 4,5 метра, кухней с удобной столешницей у окна, тремя спальнями с высокими окнами и выходом на террасу. Особое внимание уделено современным инженерным решениям: системе водяного отопления, умной системе перекрытия воды при протечках и продуманным техническим коммуникациям.
  • Срок строительства: 6 месяцев
  • Комплектация: «Теплый контур»
  • Общая площадь: 150 м2 по внешнему контуру, жилая 101, м2
  • Количество комнат: 3 жилых комнаты + гаредероб
  • Фундамент: Ж/Б сваи 150х150
Технические детали проекта
Технические характеристики

Каркас и утепление:

  • Обработка нижних досок антисептиком;
  • Каркас — доска сухая строганная сосна (45х195);
  • Утеплитель — каменная вата Технониколь Роклайт Master (стены — 200мм, потолок — 250мм, м/к перегородки — 150мм);

Кровля и цоколь:

  • Крыша — металлочерепица (0,5), RAL 7024 матовая + все доборные элементы;
  • Цоколь зашит — профлист волна С8, матовый, RAL 7024;

Окна и отделка:

  • Окна — REHAU (5 камер, профиль 70мм), графит/графит со шпросами;
  • Откосы снаружи — дерево с покраской в 2 слоя;
  • Отделка снаружи — имитация бруса 180мм Кедр с горизонтальным расположением и покраской в 2 слоя;
  • Входная дверь с терморазрывом (производитель — Новосибирск);
  • Черновой пол — полусухая стяжка;
  • Террасная доска — лиственница Вельвет с покрытием маслом в 2 слоя;
  • Рейки на террасе — окрашены в 2 слоя;

Отопление, сантехника, электрика:

  • Электрика — дифавтомат, кабель ВВГнг-LS в гофре; котельная с полной разводкой «под ключ» (по дому разводка не осуществлялась);
  • Сантехника — скрытая разводка воды в стяжке;
  • Отопление — электрический котёл Зота, водяной тёплый пол Valtec; дополнительно заведен газовый котёл (сторонний подрядчик);
  • Бойлер косвенного нагрева 200л, радиаторы в гостиной;

Технические моменты:

  • Вода — бурение скважины, подключение к скважине;
  • Септик — переливной, бетонные кольца плюс люк;
  • Подключение дома к электричеству под землёй;
  • Канализационные трубы утеплены, дополнительно проложен греющий кабель;

Дополнительные услуги:

  • Установка датчика от протечки воды;
  • Монтаж усиленного тёплого контура под окнами (для отсечки холода и предотвращения конденсата);

Видео-обзор дома


Экстерьер

Слайдер
Фото 1 Фото 2 Фото 3 Фото 4 Фото 5 Фото 6 Фото 7 Фото 8 Фото 9

Планировка

Слайдер
Фото 1 Фото 2 Фото 5 Фото 6